

Новый
проект
дома,
в
котором
попытался
собрать весь собственный опыт строительства и проживания, накопленный при
эксплуатации загородных домов. Постарался сделать идеальное решение в данном
сегменте
Из планировочных особенностей:
При входе, есть хорошее, защищенное крыльцо, на которое можно сбросить вещи
перед заносом в дом, это важно и часто бывает нужно.
С крыльца можно попасть в дом и топочную. В топочную можно попасть и из дома.
Это тоже важно, т.к. контролировать работу приборов Вы можете не выходя на
улицу, а когда уезжаете, можете запереть внутреннюю дверь, оставив ключи от
топочной соседу или коммунальным службам. Дальше этого помещения они попасть не
смогут.
При входе, большая гардеробная - рекреационная зона. Когда входит несколько
человек, им не будет тесно.
Широкая лестница с оптимальной высотой ступеней. Под лестницей вход в жилую
комнату, часть подлестничного пространства будет использована под гардероб для
этой комнаты. Я предполагаю её как родительскую (для пожилых людей). Комната
находится на удалении от шумной гостиной зоны. Гостиная максимально
оптимизирована, есть место и для просторного дивана, для хорошей тв-стенки,
камина. Портальный проход на кухню. Сама кухня, как центр притяжения, имеет
отличную площадь, имеет собственную кладовку и выход на веранду. Веранда может
быть остеклена, я закладываю на ней печь-барбекю.
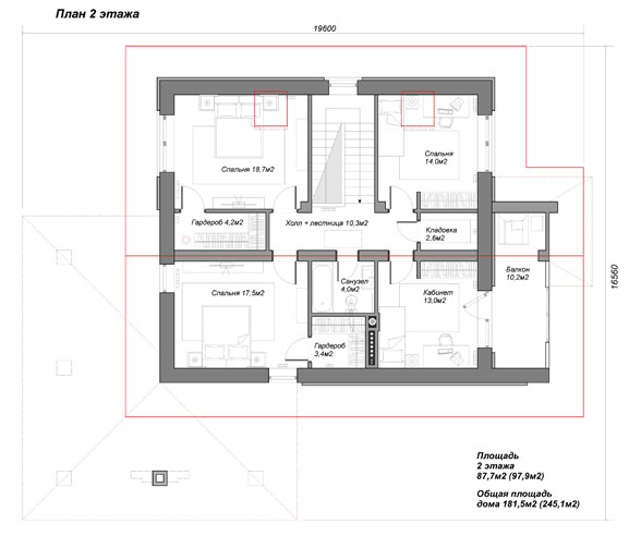
На втором этаже - 4 комнаты, у некоторых есть свои гардеробные. Есть общая
кладовка. Потолки везде высокие, около 3-х метров. Панорамные окна, чердак.
В конструктиве тоже постарался все максимально оптимизировать: МЗЛФ с утеплением
отмостки, сборные перекрытия, газобетон толщиной 500мм. (это оптимальное решение
для нашего региона), штукатурка "короед" (надежная, не подверженная трещинам).





